Щелевые антенны были разработаны ещё в первой половине XX века и с тех пор получили множество модификаций. Среди них можно выделить волноводно-щелевые, скелетно-щелевые, плоские, спиральные, логарифмические конструкции. Каждая из них имеет свои особенности и области применения. Сейчас мы изучим теоретические основы, формулы для расчётов, а также примеры реальных конструкций и направлений их использования.
Принцип работы щелевой антенны
Щель (прорезь) в металлической поверхности представляет собой структуру, через которую происходит утечка электромагнитной энергии наружу. При наличии высокочастотного тока в металлической пластине возникает распределённое электрическое поле. Если в экранирующей поверхности прорезать узкую щель, то часть поля будет излучаться в виде пространственной волны. Этот процесс аналогичен работе линейного диполя, но вместо свободно стоящего проводника используется ограниченная область излучения.
Для одиночной прорези можно выразить её диаграмму направленности через синусоидальную зависимость от угла:
![]()
где: E(θ) — амплитуда электрического поля в направлении угла θ, E0 — амплитуда на оси щели, a — длина щели, λ — длина волны.

Максимальное излучение достигается, когда направление совпадает с осью щели. Плотность мощности в дальней зоне зависит от угла и может быть направленной в основном в сторону, противоположную поверхности металла.
Типы и разновидности этих антенн
Существует множество вариантов реализации таких антенн. Конструктивные отличия связаны с формой, методом питания, рабочим диапазоном и требованиями к направленности. Рассмотрим основные типы подробнее.
Волноводно-щелевая антенна
Этот тип антенн реализуется на базе металлического волновода прямоугольного сечения. Отверстия прорезаются в одной из стенок волновода и располагаются на заданных расстояниях друг от друга. Энергия передаётся по волноводу, возбуждая щели последовательно. Каждая из них излучает часть энергии, формируя общий излучаемый фронт.
Активно используется в навигационных РЛС, авиационных и судовых радиолокационных станциях. Её характерной чертой выступает высокая прочность, устойчивость к погодным воздействиям и возможность механического сканирования луча при повороте всего волновода.
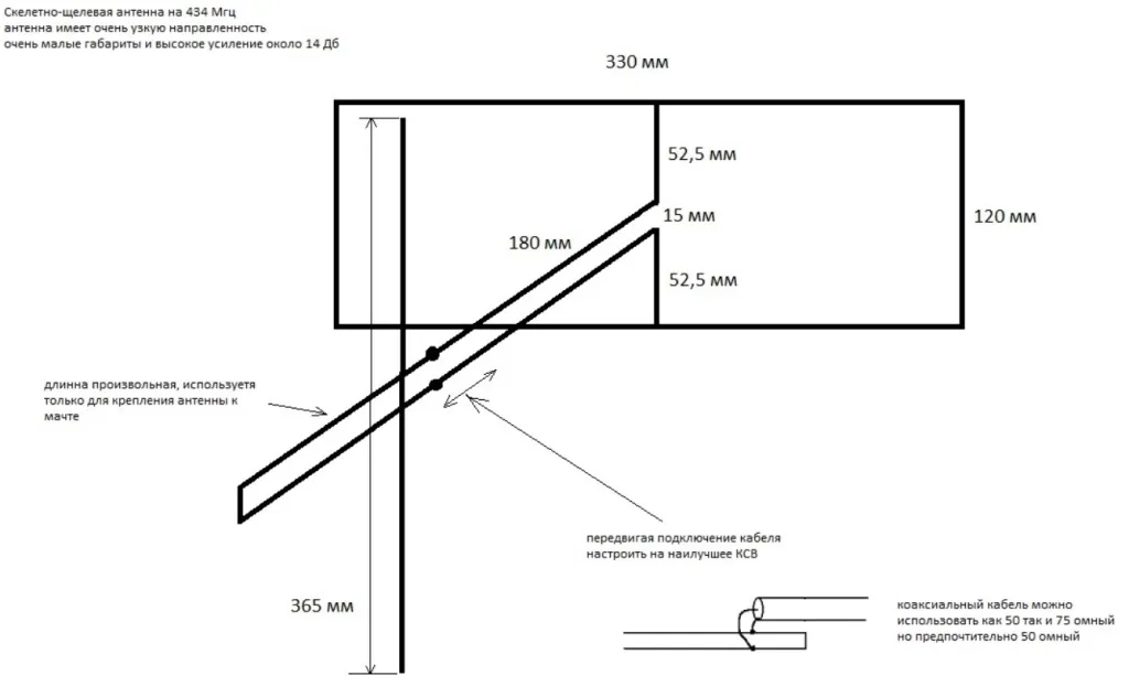
Скелетно-щелевая антенна
Эта разновидность представляет собой конструкцию, в которой щель образована не в сплошной металлической пластине, а в каркасной структуре. Часто используется в диапазоне УКВ 145 и 434 МГц.

Плоская щелевая антенна
Плоские конструкции обычно изготавливаются на печатных платах. Щели представляют собой узкие прорези в медном слое, размещённом на диэлектрике. Этот тип особенно популярен в мобильных устройствах, системах Wi-Fi, радарах ближнего действия и даже в спутниковой связи.

Прорези могут быть размещены в виде массивов, объединённых в фазированные решётки. Это позволяет не только формировать диаграмму направленности, но и сканировать её без механических движений. Расчёт таких антенн требует моделирования в электромагнитных САПР.
Щелевая антенна Вивальди
Антенна Вивальди представляет собой конструкцию с экспоненциально расширяющейся щелью, вытравленной в металлическом слое. Особенность такой щели заключается в способности излучать широкий диапазон частот, начиная от десятков мегагерц до гигагерц.

Широкополосность достигается за счёт плавного согласования сопротивления вдоль всей длины щели. Излучение направлено преимущественно в одну сторону, и диаграмма направленности имеет форму узкого лепестка. Антенны этого типа активно используются в спектральных анализаторах, радарных системах и приёме импульсных сигналов.
Щелевая спиральная антенна
В данной конструкции щель закручена по спирали. Это обеспечивает круговую поляризацию и широкую полосу рабочих частот. Использование спиральных прорезей характерно для приёма сигналов с различной ориентацией, особенно в системах спутниковой навигации и радиоастрономии. Щель может быть реализована в виде прорези в цилиндрической или конической поверхности. Эффективность зависит от шага спирали, числа витков и материалов, из которых изготовлено устройство.
Логарифмическая щелевая антенна
Логопериодическая структура позволяет добиться широкого диапазона частот при компактных габаритах. Щели здесь уменьшаются к краю, следуя логарифмическому закону. Это обеспечивает почти постоянное сопротивление во всём диапазоне и устойчивую диаграмму направленности. Применяются в радиосканерах, спектроанализаторах, устройствах радиоразведки и измерительных комплексах. Расчёт их формы требует знания параметров логарифмической прогрессии и методов широкополосного согласования.
Расчёт щелевой антенны
Точные расчёты необходимы для обеспечения требуемой диаграммы направленности, согласования с источником сигнала и минимизации потерь. В зависимости от типа антенны, методика расчёта может отличаться, однако основные физические принципы сохраняются.

Основные параметры щели
Щель в металлической поверхности работает аналогично диполю, но с иным распределением тока.
Наиболее важные геометрические параметры:
Длина щели (l): обычно равна половине длины волны в свободном пространстве или волноводе
Ширина щели (w): выбирается так, чтобы обеспечить резонанс и удобство изготовления, обычно 1–3 мм
Расстояние между щелями (d): влияет на фазовый фронт и направленность излучения
Угол наклона щели (φ): используется для фазового сдвига в решётках
Глубина щели (если используется в волноводе): влияет на форму ДН и сопротивление
Простейшая щель, работающая в резонансе, имеет длину
где λ — длина волны в свободном пространстве:
где: c=3⋅108 м/с — скорость света, f — частота сигнала в герцах.
Щелевая решётка
Для создания направленной диаграммы щели могут быть объединены в решётку. Если щелей N, и они размещены через равные расстояния d, то результирующее излучение описывается суммой комплексных векторов:

где: An — амплитуда сигнала на n-й щели, k=2πλ — волновое число, ϕn — фазовый сдвиг между соседними элементами. При равномерной амплитуде и фазе формируется направленный основной лепесток в сторону нормали. Изменение фазового распределения позволяет поворачивать луч без перемещения конструкции.
Расчёт волноводно-щелевой антенны
Рассмотрим пример: нужно спроектировать такую антенну длиной 3 метра для частоты 3 ГГц. Вычислим длину волны:

Если использовать 30 щелей на длине 3 м, расстояние между ними:
Прорези располагаются под углом 45° к продольной оси, каждая из которых создаёт излучение, направленное в сторону, перпендикулярную волноводу. Суммарный луч формируется в зависимости от наклона и расстояния между прорезями. Если требуется сдвиг луча, применяется фазовая компенсация путём смещения щелей вдоль волновода. Для компенсации потерь и обеспечения равномерного излучения, амплитуду щелей уменьшают к дальнему концу, обеспечивая эквивалент логарифмической апертуры.
Диаграмма направленности
Диаграмма направленности (ДН) определяет, как энергия распределяется в пространстве. Она может быть представлена в виде амплитудной функции угла относительно оси излучения.

Основные параметры:
Основной лепесток: направление максимального излучения
Боковые лепестки: вторичные максимумы, нежелательные в большинстве случаев
Уровень боковых лепестков: измеряется в дБ
Коэффициент направленного действия (КНД):

где Ae — эффективная апертура.
Для решётки из щелей длиной 3 м, работающей на частоте 3 ГГц: Ae≈3⋅h
где h — высота щели (предположим 0.02 м). Тогда:
В дБ:
Такая антенна обеспечивает узкий луч и высокое усиление, что делает её полезной в РЛС и радионавигации.
Конструкции и изготовление
Щелевая антенна на 28 МГц Частота 28 МГц соответствует длине волны:
Щель такой длины сложно реализовать физически, поэтому используется резонансная укороченная конструкция, включающая конденсаторы или катушки. Антенна может быть реализована как вертикальная щель с питанием от коаксиального кабеля.
Автомобильная УКВ антенна
Частоты VHF (30–300 МГц) позволяют создавать малогабаритные конструкции длиной 0.5–1 м. Они часто размещаются на крышах автомобилей и используются в гражданской и военной радиосвязи.
Судовые щелевые антенны РЛС
На судах применяются в радиолокационных станциях, обеспечивающих навигационную безопасность. Обычно используются горизонтальные волноводно-щелевые решётки длиной 2–3 м, установленные на вращающемся приводе. Механическое сканирование позволяет создавать панорамное изображение окружающей обстановки.
Материалы и изготовление
Процесс изготовления зависит от типа, диапазона рабочих частот, применяемых материалов и предполагаемой среды эксплуатации. Тем не менее, общие принципы конструирования сохраняются.
Материалы
Наиболее часто используются следующие материалы:
Медь и латунь — высокая электропроводность, подходят для изготовления щелей на печатных платах и волноводных конструкций;
Алюминий — лёгкий и стойкий к коррозии материал, особенно популярен в судовых и авиационных антеннах;
Диэлектрики (текстолит, керамика) — используются как подложки в печатных антеннах.
Технологии изготовления
1 Фрезеровка или лазерная резка — применяются для прорезания точных щелей в металлических листах или волноводах.
2 Химическое травление — используется в производстве печатных антенн на диэлектриках.
3 Пайка и клёпка — соединение элементов, в том числе питание коаксиальным кабелем.
4. 3D-печать — перспективное направление для быстрого прототипирования, особенно при изготовлении корпусов с последующим нанесением токопроводящих покрытий.
Во многих регионах России имеются предприятия, занимающиеся изготовлением таких антенн на заказ. В промышленности возможно тиражирование партий при наличии чертежей и электромагнитной модели. Подобные изделия можно заказать и на китайских платформах, с возможностью доставки. Важно проверять, чтобы антенна была рассчитана на нужную поляризацию и имела правильный интерфейс подключения (например, N-type или SMA).
Области применения
Благодаря универсальности и высокому КПД, щелевые антенны находят применение в широком спектре задач:
Радиолокация — судовые, авиационные, наземные РЛС, в том числе навигационные;
Радиосвязь — УКВ и КВ диапазоны, в том числе мобильные и стационарные станции;
Спутниковая связь — особенно спиральные антенны и широкополосные;
Военная техника — антенны с высокой защищённостью и механической прочностью;
Научные исследования — радиоастрономия, антенны для обсерваторий;
Мобильные устройства — Wi-Fi и GSM антенны в корпусах смартфонов и маршрутизаторов;
Измерительные комплексы — логарифмические и Вивальди-антенны для анализа спектра.
Сравнительная таблица
